BST766 โกดังให้เช่าขนาด 9,166ตร.ม พื้นที่ สีเหลือง หนองอิรุณ บ้านบึง ชลบุรี รับน้ำหนักได้ 3.5 ตัน
BST766 โกดังให้เช่าขนาด 9,166ตร.ม พื้นที่ สีเหลือง หนองอิรุณ บ้านบึง ชลบุรี รับน้ำหนักได้ 3.5 ตัน
สนใจติดต่อ: คุณบัวโทร: 093-6464597, 082-6914598 Line: Bua093
ค่าเช่า 1,101,240บาท/เดือน
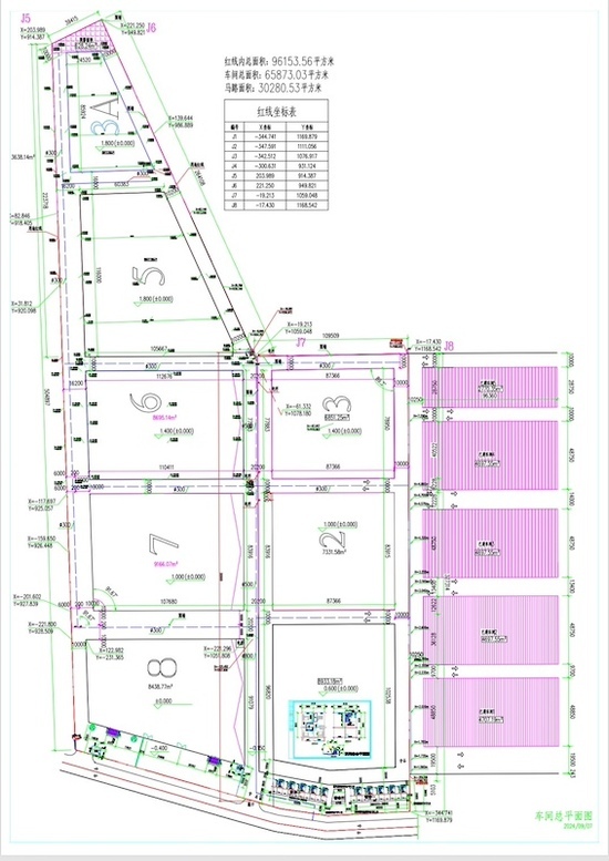
โกดังให้เช่า ขนาด 9,166 ตร.ม. พื้นที่สีเหลือง หนองอิรุณ บ้านบึง ชลบุรี
รายละเอียด:
ขนาดพื้นที่: 9,166 ตร.ม.
รับน้ำหนักได้: 3.5 ตัน
ค่าเช่า: 120 บาท/ตร.ม.
สัญญาเช่า: 3 ปี
ประกัน: 3 เดือน
ค่าเช่าล่วงหน้า: 1 เดือน
ไฟฟ้า: 800-2000 KVA
ใบ รง. 04: สามารถขอใบอนุญาตประกอบการได้
ถนนกว้าง: 16 เมตร รถเทเลอร์เข้าออกสะดวก
ห่างจากท่าเรือ: ประมาณ 65 กม.
ที่ตั้ง: ตำบล หนองอิรุณ อำเภอบ้านบึง ชลบุรี 20220
คุณสมบัติพิเศษ:
พื้นที่สีเหลือง เหมาะสำหรับทำโรงงานและธุรกิจที่ต้องการพื้นที่ขนาดใหญ่
รองรับน้ำหนัก 3.5 ตัน เหมาะสำหรับโกดังเก็บสินค้าและการขนส่ง
ห่างจากชุมชน ทำให้เหมาะสำหรับการทำธุรกิจและการผลิต
รถเทเลอร์สามารถเข้า-ออกได้สะดวกสบาย
สนใจติดต่อ:
คุณบัว: โทร 093-6464597, 082-6914598
Line: Bua093
Facebook: BH Property
พื้นที่ดีๆ แบบนี้ห้ามพลาด! ติดต่อเพื่อขอรายละเอียดเพิ่มเติมได้ทุกวันค่ะ
ที่ตั้ง 5 ตำบล หนองอิรุณ อำเภอบ้านบึง ชลบุรี 20220
สนใจติดต่อ: คุณบัวโทร: 093-6464597, 082-6914598 Line: Bua093
PL. Real Estate Broker (ได้รับการอนุญาตจากเจ้าของแล้ว)
Facebook: BH Property
https://www.facebook.com/bhproperty.01/
![]() |
| ยี่ห้อ: | BST766 โกดังให้เช่าขนาด 9,166ตร.ม พื้นที่ สีเหลือง หนองอิรุณ บ้านบึง ชลบุรี รับน้ำหนักได้ 3.5 ตัน | รุ่น: | BST766 โกดังให้เช่าขนาด 9,166ตร.ม พื้นที่ สีเหลือง หนองอิรุณ บ้านบึง ชลบุรี รับน้ำหนักได้ 3.5 ตัน | ||
| ราคา: | 1,101,240 บาท | ต้องการ: | ขาย | ||
| ติดต่อ: | พิชาญ | อีเมล์: | |||
| สภาพ: | - | จังหวัด: | ชลบุรี | ||
| โทรศัพย์: | 0945695997 | IP Address: | 172.70.208.47 | ||
| มือถือ: | 0945695997 | เลขบัตรประชาชน: | 1046264783XXX | ||
| ที่อยู่: | BST766 โกดังให้เช่าขนาด 9,166ตร.ม พื้นที่ สีเหลือง หนองอิรุณ บ้านบึง ชลบุรี รับน้ำหนักได้ 3.5 ตัน | ||||
| คำค้น: | BST766 โกดังให้เช่าขนาด 9 | 166ตร.ม พื้นที่ สีเหลือง หนองอิรุณ บ้านบึง ชลบุรี รับน้ำหนักได้ 3.5 ตัน | | ||||

